Place Canardière

2760 app 502, chemin de la Canardière, Québec, G1J 2G5

* Les appartements disponibles peuvent différer des photos présentées ci-dessous.
* Les appartements disponibles peuvent différer des photos présentées ci-dessus.

title= Imprimer la fiche

Description

Avec ses 110 logements répartis dans 2 immeubles, Place Canardière est un complexe qui offre un milieu de vie de choix à ses locataires. Il offre plusieurs commodités, dont une piscine intérieure, un sauna et un stationnement intérieur. Situé dans l’arrondissement de Beauport, ce complexe unique est à proximité des transports en commun, et d’une multitude de centres d’intérêt et de services tels que des épiceries, des Galeries de la Canardière, des services de santé, du Parc-O-Bus d’Estimauville et de plusieurs parcs urbains. Envie d’une vie de quartier au cœur d’un milieu tranquille et sécuritaire ? Place Canardière est la destination idéale.

Grandeur

Étage

5

Disponibilité

Maintenant

Prix

870 $ par mois

870 $ par mois non meublé

915 $ par mois semi-meublé

Inclusions

Chauffage

Électricité

Eau chaude

Caractéristiques

  • Rangement
  • Nombre de salle de bain : 1
  • Balcon privé : 1
  • Stationnement extérieur : selon la disponibilité
  • Stationnement intérieur non chauffé : 55$

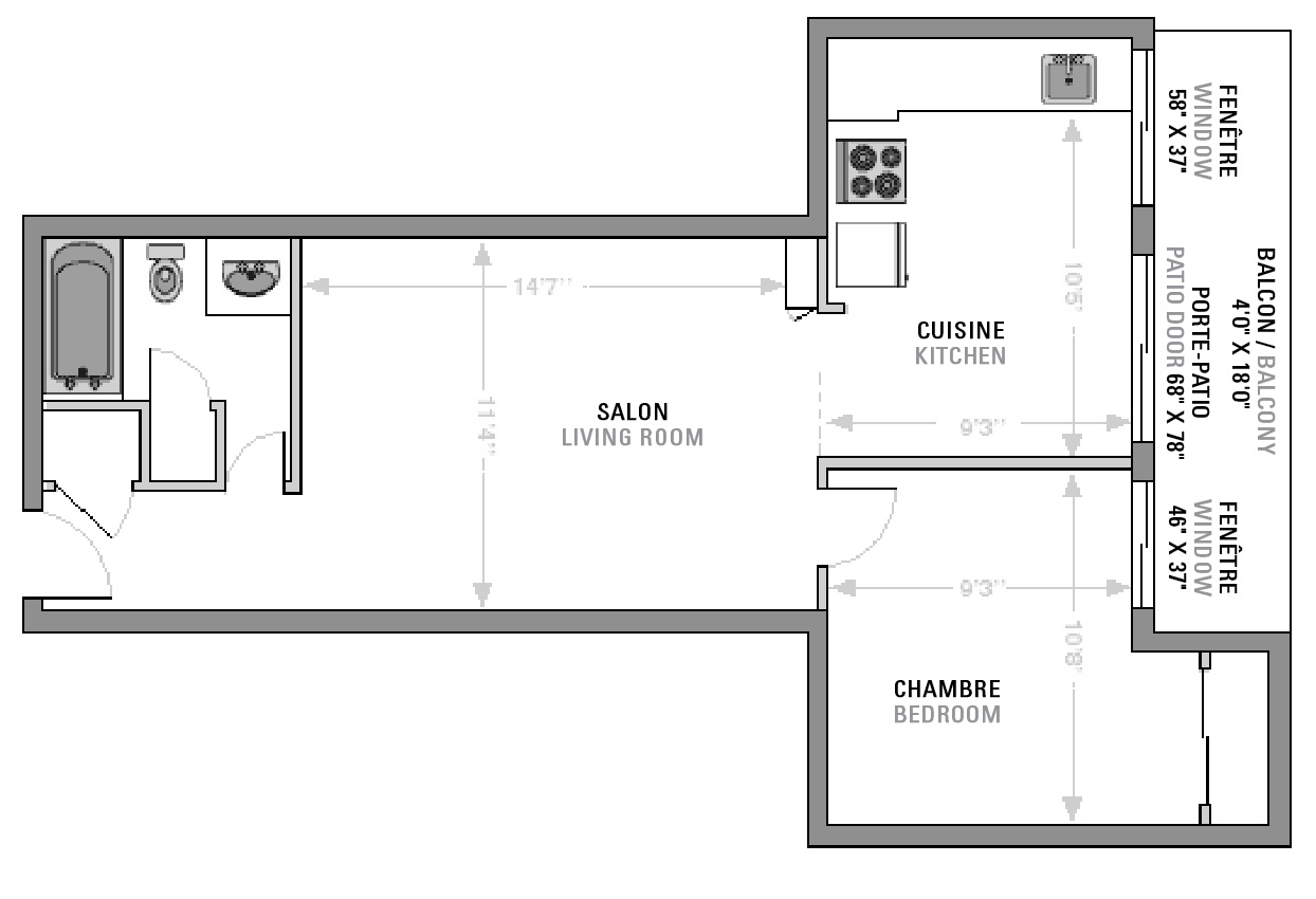
Plan de l'appartement
Dimensions approximatives

Nom du complexe / Immeuble

Place Canardière

Adresse

2760 chemin de la Canardière
Québec, G1J 2G5

2055 rue Sanfaçon
Québec, G1E 3R9

Description du complexe

111 logements sur 6 étages

title=

Avec ses 110 logements répartis dans 2 immeubles, Place Canardière est un complexe qui offre un milieu de vie de choix à ses locataires. Il offre plusieurs commodités, dont une piscine intérieure, un sauna et un stationnement intérieur. Situé dans l’arrondissement de Beauport, ce complexe unique est à proximité des transports en commun, et d’une multitude de centres d’intérêt et de services tels que des épiceries, des Galeries de la Canardière, des services de santé, du Parc-O-Bus d’Estimauville et de plusieurs parcs urbains. Envie d’une vie de quartier au cœur d’un milieu tranquille et sécuritaire ? Place Canardière est la destination idéale.

Services de l'immeuble

Piscine intérieure

Sauna

Espace de rangement

Terrasse sur le toit

Buanderie

Dispositifs de sécurité

Carte d'accès

Caméra

Intercom

Ascenseur

Porte automatique

Plan du complexe
* Dimensions approximatives

Place Canardière plan

Disponibilités

title=

Immeuble # de porte  Grandeur Prix Étage Inclusions Entrées Disponibilité Promo
2760 301 870 $ 3 Chauffage Eau chaude Électricité Maintenant chevron_right
2055 500 1 105 $ 5 Chauffage Eau chaude Électricité Entrée laveuse, sécheuse Maintenant chevron_right
2760 404 870 $ 4 Chauffage Eau chaude Électricité Maintenant chevron_right
2760 502 870 $ 5 Chauffage Eau chaude Électricité Maintenant chevron_right

Accéder à un appartement

Pour information ou visite


418-667-2257

Se présenter au

2760 chemin de la Canardière app. 107, Québec, G1J 2G5

place.canardiere@laberge.qc.ca

Faire une demande d'information

Pour connaître les disponibilités des appartements ou pour planifier une visite, veuillez communiquer directement avec le responsable de l'immeuble.

Pour toutes questions relatives à la protection de vos renseignements personnels,
veuillez communiquer avec le Responsable de la protection des renseignements personnels.

Responsable de la protection des renseignements personnels

5355, boul. des Gradins
Québec (Québec)
G2J 1C8

confidentialité@canac.ca