Place des Peupliers

445 app 408, avenue des Pins E, Québec, G1J 1J9

* Les appartements disponibles peuvent différer des photos présentées ci-dessous.
* Les appartements disponibles peuvent différer des photos présentées ci-dessus.

title= Imprimer la fiche

Description

Avec ses 95 appartements répartis dans 2 immeubles, Place des Peupliers est situé dans le quartier de Lairet de l'arrondissement de Limoilou où l’on y trouve des parcs urbains admirablement aménagés. Situés au cœur de Limoilou, les immeubles sont à proximité d’une multitude de centres d’intérêt et de services tels que des épiceries, des Galeries Charlesbourg, des restaurants et des services de santé, dont l’Hôpital de l’Enfant-Jésus. S’établir à Place des Peupliers, c’est vivre une vie de quartier tranquille, heureuse et sécuritaire.

Grandeur

Étage

4

Disponibilité

Maintenant

Prix

1 120 $ par mois

1 120 $ par mois non meublé

1 165 $ par mois semi-meublé

Inclusions

Chauffage

Électricité

Eau chaude

Caractéristiques

  • Entrée laveuse, sécheuse
  • Bain tourbillon
  • Nombre de salle de bain : 2
  • Balcon privé : 1
  • Stationnement intérieur chauffé : 55$

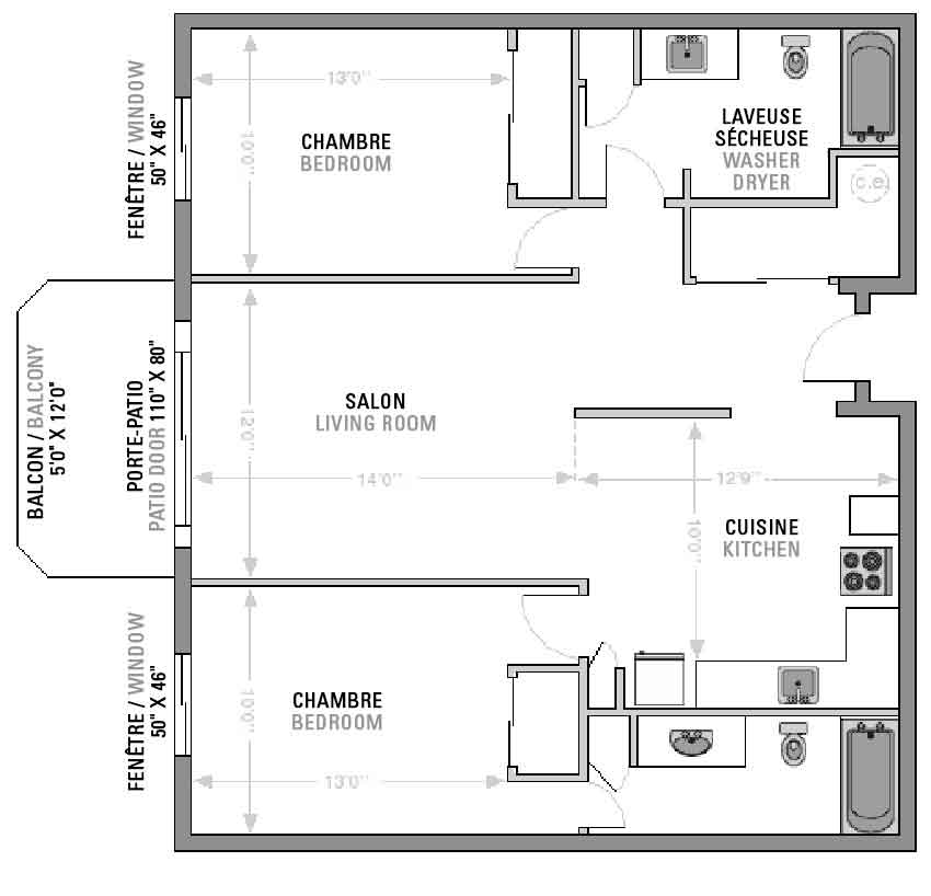
Plan de l'appartement
Dimensions approximatives

Nom du complexe / Immeuble

Place des Peupliers

Adresse

445 avenue des Pins E
Québec, G1J 1J9

770 rue des Peupliers E
Québec, G1J 5J4

Description du complexe

96 logements sur 4 étages

title=

Avec ses 95 appartements répartis dans 2 immeubles, Place des Peupliers est situé dans le quartier de Lairet de l'arrondissement de Limoilou où l’on y trouve des parcs urbains admirablement aménagés. Situés au cœur de Limoilou, les immeubles sont à proximité d’une multitude de centres d’intérêt et de services tels que des épiceries, des Galeries Charlesbourg, des restaurants et des services de santé, dont l’Hôpital de l’Enfant-Jésus. S’établir à Place des Peupliers, c’est vivre une vie de quartier tranquille, heureuse et sécuritaire.

Services de l'immeuble

Piscine extérieure

Dispositifs de sécurité

Carte d'accès

Caméra

Intercom

Ascenseur

Plan du complexe
* Dimensions approximatives

Place des Peupliers plan

Disponibilités

title=

Immeuble # de porte  Grandeur Prix Étage Inclusions Entrées Disponibilité Promo
445 308 1 120 $ 3 Chauffage Eau chaude Électricité Entrée laveuse, sécheuse Maintenant chevron_right
770 104 1 120 $ RDC Chauffage Eau chaude Électricité Entrée laveuse, sécheuse Maintenant chevron_right
445 408 1 120 $ 4 Chauffage Eau chaude Électricité Entrée laveuse, sécheuse Maintenant chevron_right
445 205 950 $ 2 Chauffage Eau chaude Électricité Entrée laveuse, sécheuse Maintenant chevron_right
445 404 520 $ 4 Chauffage Eau chaude Électricité Maintenant chevron_right
445 105 950 $ RDC Chauffage Eau chaude Électricité Entrée laveuse, sécheuse Maintenant chevron_right
770 200 950 $ 2 Chauffage Eau chaude Électricité Entrée laveuse, sécheuse Maintenant chevron_right

Accéder à un appartement

Pour information ou visite


418-627-7488

Se présenter au

445 avenue des Pins E, Québec, G1J 1J9

place.despeupliers@laberge.qc.ca

Faire une demande d'information

Pour connaître les disponibilités des appartements ou pour planifier une visite, veuillez communiquer directement avec le responsable de l'immeuble.

Pour toutes questions relatives à la protection de vos renseignements personnels,
veuillez communiquer avec le Responsable de la protection des renseignements personnels.

Responsable de la protection des renseignements personnels

5355, boul. des Gradins
Québec (Québec)
G2J 1C8

confidentialité@canac.ca